img description

Boven-Leeuwen Expeditieweg 8 - 03

€ 1350 p.m.

Omschrijving

TE HUUR, NET AFGEWERKTE UNIT AAN DE EXPEDITIEWEG 8 03 BOVEN-LEEUWEN

Kenmerkend voor deze unit is zijn nette afwerking met nieuw spack-spuitwerk, een systeemplafond met led-verlichting, een nieuw toilet, keukenblok, internet aansluiting en een goede CV-installatie. Kortom, een pand waar u zo in kunt trekken!

INDELING:
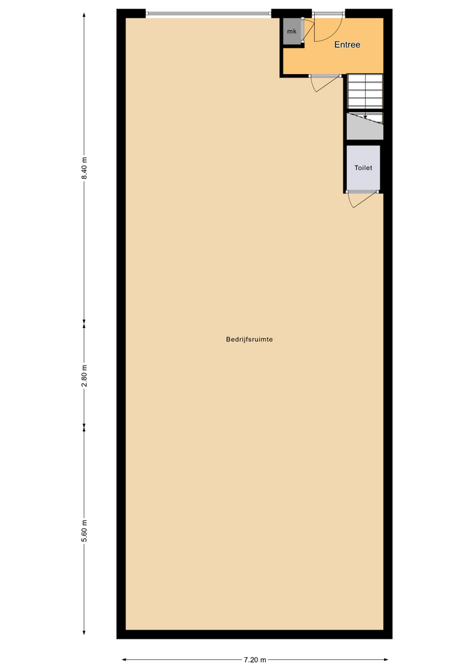
Begane grond: entreehal, trapopgang naar 1e verdieping, ruime werkplaats/opslagruimte met elektrisch bedienbare roldeur en toilet.
Eerste verdieping: verdieping met ruime kantoorruimte en nieuwe keuken.

ALGEMENE INFORMATIE:
– bedrijfsruimte circa 121 m² b.v.o.
– vloerbelasting bedrijfsruimte circa 1.500 kg/ m²
– vrije hoogte circa 3.2 meter
– kantoorruimte circa 121 m² b.v.o.
– vloerbelasting kantoorruimte circa 500 kg/ m²
– vrije hoogte circa 2.8 meter

BESTEMMINGSPLAN:
Voor deze bedrijfsruimte / kantoorruimte geldt een bestemming ‘Bedrijventerrein – 3’. Deze bestemming is bestemd voor:
– het uitoefenen van bedrijfsmatige activiteiten die staan vermeld in de categorie 2 t/m 3.2 van de Lijst van bedrijven, met uitzondering van geluidzoneringsplichte inrichtingen. Deze ‘Lijst van bedrijven’ is op te vragen via www.ruimtelijkeplannen.nl

Twijfelt u of de bestemming voldoet bij uw ondernemingsplannen? Neemt u dan contact op met het omgevingsloket van de gemeente Druten.

PARKEREN:
Er is voldoende gratis parkeergelegenheid rondom het gebouw aanwezig.

BEREIKBAARHEID:
Gelegen op industrieterrein Veesteeg in Boven-Leeuwen welke centraal gelegen is in het land van West Maas en Waal en uitstekend bereikbaar met goede verbindingen naar diverse grote steden. Zo bereikt u binnen enkele autominuten de snelweg A15 (Rotterdam – Keulen) en in circa 20 autominuten via de N322 steden als Nijmegen en Arnhem. Ook is er op loopafstand een busstation met verbindingen naar onder andere Tiel en Nijmegen.

HUURPRIJS & PERIODE:
– huurprijs € 1.350,- per maand exclusief BTW
– kosten gas, water en elektra voor rekening van huurder
– waarborgsom 3 maanden huur exclusief BTW
– beschikbaar per 1 januari 2026
– huurperiode in overleg
– opzegtermijn à 12 maanden
– huurovereenkomst conform ROZ model

BIJZONDERHEDEN:
– elektrisch bedienbare roldeur in de bedrijfsruimte
– gehele unit voorzien van verwarming, systeemplafond en nette wandafwerking
– uitgebreide groepenkast
– royaal geheel bestraat buitenterrein met voldoende parkeergelegenheid
– kantoor op verdieping is zeer netjes en dient ook als kantoor gebruikt te worden
– geen autobedrijven

Kenmerken

  • Type object: Bedrijfsruimte
  • Vloeroppervlakte: 242m2
  • Bouwjaar: 2009
Meer lezen

Niet gevonden wat u zoekt?

Laat uw gegevens achter, zodat u op de hoogte wordt gebracht van ons nieuwe aanbod of plaats een professionele zoekopdracht

Heeft u vragen of wilt u een afspraak maken? Neem gerust contact met ons op!

"*" geeft vereiste velden aan

Dit veld is bedoeld voor validatiedoeleinden en moet niet worden gewijzigd.
Door het formulier te gebruiken, gaat u akkoord met de verwerking van uw persoonsgegevens volgens onze privacyverklaring