img description

Tiel Morsestraat 20

€ 18500 p.m.

Omschrijving

MODERN BEDRIJFSGEBOUW MET KANTOREN, WERKPLAATS EN VEEL BUITENTERREIN IS TE HUUR

Op industrieterrein ‘Kellen’ gelegen zeer verzorgd en representatief vrijstaand bedrijfspand bestaande uit ca 1.680 m² v.v.o. bedrijfsruimte en circa 860 m² v.v.o. representatieve kantoorruimten. De kantoorruimten beschikken over veel lichtinval, airconditioning, ledverlichting en zijn top afgewerkt. De bedrijfsruimte beschikt over krachtstroom, overheaddeuren en een indeling in vier delen.
Het gebouw staat op een grote kavel van maar liefst 6492m2, waardoor er tevens nog uitbreidingsmogelijkheden zijn.

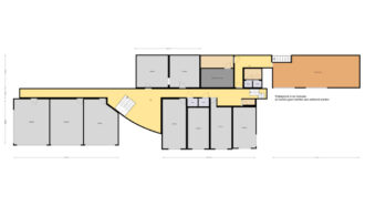
INDELING:
Indeling tot de kantoorruimte via twee entrees, beide aan de voorzijde van het gebouw. Via deze entrees is een centrale gang bereikbaar, bij de hoofdentree bevindt zich een verbreding met wachtruimte en balie. Langs de gang bevinden zich langs de buitengevel van het gebouw op de begane grond vijf kantoorkamers, langs de binnen gevel van het gebouw bevinden zich op de begane grond een kantoorkamer, een vergaderzaal en een archiefruimte. Via de centrale gang zijn voorts drie toiletten en een schoonmaakruimte bereikbaar. De achtergelegen bedrijfsruimten zijn via directe en indirecte toegangen vanuit de centrale gang bereikbaar.

De bedrijfsruimte is verdeeld in vier compartimenten. Eén compartiment heeft een duidelijke logistieke functie en is voorzien van twee roldeuren die toegang bieden tot het zij – en het achter terrein. Twee bedrijfsruimten, tevens voorzien van 2 roldeuren, zijn in gebruik ten behoeve van assemblage activiteiten en daartoe ingericht, één ruimte is voorzien van een kantoorruimte en een opslagruimte voor toebehoren. Eén bedrijfsruimte is ingericht ten behoeve van op – en overslagactiviteiten. De compartimenten kunnen desgewenst samengevoegd worden tot een grote ruimte van 1650m2.

Op de eerste etage bevindt zich eveneens een centrale gang met vijf kantoorkamers en een koffieruimte langs de voorgevel. Twee kantoorkamers bevinden zich langs de binnen gevel, evenals een reproruimte en de cv-ruimte. Aan de zuidwestzijde van het gebouw bevindt zich de kantine met pantry en uitgebreide sanitaire voorzieningen. Voorts zijn op de etage twee toiletten en een pantry ten behoeve van de kantoorgebruikers aanwezig.

ALGEMENE INFORMATIE:
– bouwjaar 1989, 1992 en 1997
– kavelgrootte totaal 6495 m2
– gerenoveerd omstreeks 2016
– bedrijfsruimte totaal: 1.680 m²
– kantoorruimte totaal: 860 m²
– circa 3.000 m² buitenterrein aan de achterkant, voor opslag, parkeren of uitbreiding
– 4 roldeuren
– vrije hoogte bedrijfsruimte circa 5,5 meter
– vloerbelasting circa 2.500 kg/m²
– doorrijhoogte 4 meter
– stroomvoorziening afgezekerd op 3 x 100 Ampère
– energielabel A+

BESTEMMING:
Bestemming bedrijventerrein; bedrijf tot en met categorie 5.2, voor meer informatie zie de website van ruimtelijke plannen
Als u twijfelt of u hier uw bedrijf mag vestigen verwijzen wij u door naar het loket van gemeente Tiel

PARKEREN + BUITENTERREIN
Er zijn voldoende parkeerplaatsen op beveiligd en afsluitbaar buitenterrein. Het buitenterrein biedt tevens ruimte voor opslag en stalling. Voor de bezoekers bevinden zich 10 parkeerplaatsen aan de voorkant van het gebouw omringd door een fraaie recent aangelegde siertuin.

BEREIKBAARHEID:
Bedrijventerrein Kellen in Tiel is uitstekend gesitueerd nabij de uitvalswegen A15 en A2 en ligt op een steenworp afstand van het Amsterdam-Rijnkanaal met containerterminal.

HUURPRIJS & PERIODE:
– huurprijs per maand € 18.500,- excl BTW
– huurtermijn: 5 & 5 jaar
– jaarlijkse indexatie: volgens de CPI Index alle huishoudens (2015=100)
– beschikbaar vanaf: januari 2026
– opzegtermijn: 12 maanden
– servicekosten: nader te bepalen

Huurovereenkomst conform ROZ model

Zekerheidstelling: Waarborgsom ter grootte van 3 maanden huurbetalingsverplichting vermeerderd met omzetbelasting.

Omzetbelasting: Indien huurder niet aan het zgn. ‘90%-criterium’ voldoet, zal er van rechtswege sprake zijn van omzetbelasting vrijgestelde verhuur. Alsdan wordt de overeengekomen kale huurprijs, exclusief omzetbelasting, zodanig verhoogd, dat het voor verhuurder ontstane financiële nadeel wordt gecompenseerd.

BIJZONDERHEDEN:
– centrale ligging op populair bedrijventerrein Kellen
– ruime bestemmingsmogelijkheden (80% bebouwing mogelijk, milieucategorie t/m 5.2)
– energielabel A+
– moderne uitstraling

Kenmerken

  • Type object: Bedrijfsruimte
  • Vloeroppervlakte: 2.540m2
Meer lezen

Niet gevonden wat u zoekt?

Laat uw gegevens achter, zodat u op de hoogte wordt gebracht van ons nieuwe aanbod of plaats een professionele zoekopdracht

Heeft u vragen of wilt u een afspraak maken? Neem gerust contact met ons op!

"*" geeft vereiste velden aan

Dit veld is bedoeld voor validatiedoeleinden en moet niet worden gewijzigd.
Door het formulier te gebruiken, gaat u akkoord met de verwerking van uw persoonsgegevens volgens onze privacyverklaring