img description

Tiel Waterstraat 29

€ 1500 p.m.

Omschrijving

ABSOLUTE A1 LOCATIE MET ZEER ROYALE FRONTBREEDTE

Deze winkelruimte bevindt zich op een uitstekende locatie in het hart van het centrum van Tiel. De Waterstraat is een levendige winkelstraat met een mix van landelijke ketens, lokale ondernemers, horeca, markten en evenementen (zoals Tiel Pakt Uit, Appelpop en het Fruitcorso) trekt Tiel zowel inwoners als bezoekers uit de regio aan. Goede zichtbaarheid en veel passantenverkeer maken dit een aantrekkelijke locatie voor detailhandel en dienstverleners.

Waterstraat 29 is een karakteristiek winkelpand met een fraaie gevel en een grote etalage die zorgt voor veel daglicht en zichtbaarheid.

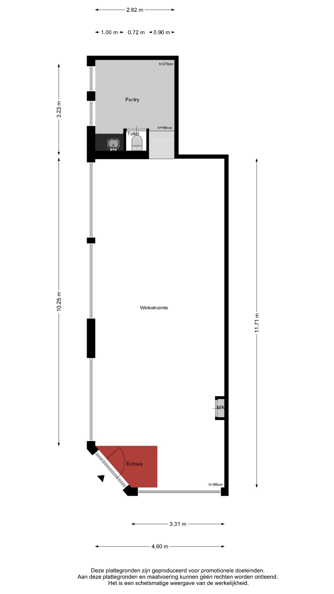
INDELING:
begane grond: entree, winkelruimte circa 56 m², trappetje naar pantry en toilet (circa 9m²)
kelder: opslagruimte circa 9 m²

ALGEMENE INFORMATIE:
– bouwjaar: 1850
– oppervlakte totaal: circa 73 m²
– oppervlakte winkelruimte: circa 56 m²
– frontbreedte: uitzonderlijk breed met 17 meter

BESTEMMING:
Bestemming: Centrum- 1;
1. detailhandel, met uitzondering van supermarkten;
2. dienstverlening;
3. horeca van horecacategorie 1 t/m 3;
4. expositieruimten;
5. cultuur en ontspanning

Twijfelt u of de bestemming voldoet bij uw ondernemingsplannen? Neemt u dan contact op met het omgevingsloket van de gemeente Tiel.

PARKEREN:
Parkeren voor bezoekers is op loopafstand mogelijk in één van de omliggende parkeerplaatsen: Westluidensepoort, de Oude Haven of bij de Poort van Santwijck. Er zijn ook speciale parkeervergunningen voor ondernemers beschikbaar via de gemeente.

BEREIKBAARHEID:
Tiel ligt centraal in de Betuwe en heeft een uitstekende bereikbaarheid. Er zijn goede verbindingen naar diverse grote steden. Zo bereikt u binnen enkele (auto)minuten de snelweg A15 (Rotterdam – Keulen) en is knooppunt Deil en de A2 binnen ca. 15 (auto)minuten aan te rijden. In en nabij het centrum zijn tevens diverse buslijnen te vinden en het NS-station is op loopafstand te bereiken.

HUURPRIJS & PERIODE:
– huurprijs € 1.500,- per maand excl BTW
– huurtermijn: 5 plus telkens 5 jaar
– jaarlijkse indexatie
– beschikbaar per: direct
– opzegtermijn: 12 maanden

Huurovereenkomst conform ROZ model, met aanvullende bepalingen vanuit de verhuurder.

Zekerheidstelling: Waarborgsom ter grootte van 3 maanden huurbetalingsverplichting vermeerderd met omzetbelasting.

Omzetbelasting: Indien huurder niet aan het zgn. ‘90%-criterium’ voldoet, zal er van rechtswege sprake zijn van omzetbelasting vrijgestelde verhuur. Alsdan wordt de overeengekomen kale huurprijs, exclusief omzetbelasting, zodanig verhoogd, dat het voor verhuurder ontstane financiële nadeel wordt gecompenseerd.

BIJZONDERHEDEN:
– mooie hoekligging met grote etage
– aantrekkelijke locatie
– er is een NEN2580 meetrapport beschikbaar

Wilt u deze winkelruimte bekijken? Neem dan contact op met ons kantoor via 0344-673567 of info@rozenhage.nl om een afspraak in te plannen.

Kenmerken

  • Type object: Bedrijfsruimte
  • Vloeroppervlakte: 73m2
Meer lezen

Niet gevonden wat u zoekt?

Laat uw gegevens achter, zodat u op de hoogte wordt gebracht van ons nieuwe aanbod of plaats een professionele zoekopdracht

Heeft u vragen of wilt u een afspraak maken? Neem gerust contact met ons op!

"*" geeft vereiste velden aan

Dit veld is bedoeld voor validatiedoeleinden en moet niet worden gewijzigd.
Door het formulier te gebruiken, gaat u akkoord met de verwerking van uw persoonsgegevens volgens onze privacyverklaring