img description

Tiel Lingewei 39

€ 1500 p.m.

Omschrijving

BEDRIJFSRUIMTE MET KANTOOR OP VERDIEPING TE HUUR

Op een uitstekende locatie aan de Lingewei 39 te Tiel, op het bekende bedrijventerrein Medel, ligt dit ruime en functionele bedrijfspand. Dit pand biedt zowel kantoor- als bedrijfsruimte en is perfect voor ondernemers die behoefte hebben aan een flexibele werkomgeving.

INDELING:
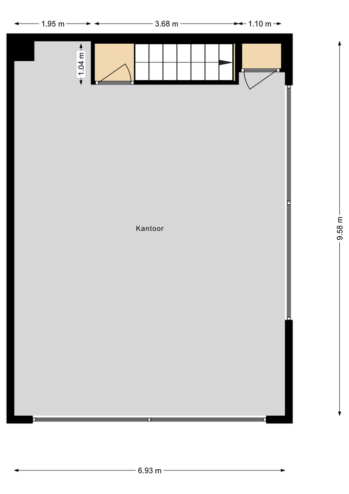
Begane grond: entree met een grote hal en toegang tot bedrijfsruimte/opslagruimte (circa 30 m²), spreekkamer, pantry, toilet, trap naar de 1e verdieping.
1e verdieping: royale, open kantoorruimte met veel daglicht en ramen aan 2 zijden (circa 68 m²), airco aanwezig

ALGEMENE INFORMATIE:
– begane grond totaal circa 68 m²
– verdieping totaal circa 68 m²
– stroomaansluiting: 3x 25 ampère
– afmeting roldeur: ca. 2.65 m hoog en ca. 3 m breed
– vloerbelasting bedrijfsruimte 1.500 kg/m²
– begane grond maximale vrije hoogte ca 2,9 meter

BESTEMMING:
Voor deze kantoorruimte met bedrijfsruimte geldt een bestemming ‘Bedrijventerrein’ met functieaanduiding bedrijf t/m categorie 3.2. Het uitoefenen van bedrijfsmatige activiteiten die staan vermeld in de categorie t/m 3.2 van de Lijst van bedrijven. Deze ‘Lijst van bedrijven’ is op te vragen via www.ruimtelijkeplannen.nl

PARKEREN:
Er is voldoende parkeergelegenheid op eigen terrein, behorende bij het verzamelgebouw. Het terrein wordt ’s avonds en ’s nachts afgesloten.

BEREIKBAARHEID:
Tiel is centraal gelegen in de Betuwe en kent een uitstekende bereikbaarheid. Deze locatie biedt uitstekende toegang tot belangrijke snelwegen zoals de A15, die Rotterdam met Keulen verbindt, en de N322, die een goede verbinding biedt naar steden als Nijmegen en Arnhem.

HUURPRIJS:
– huurprijs € 1.500,- excl. BTW per maand
– beschikbaar vanaf: per direct
– huurtermijn: 5 jaar plus 5 jaar
– waarborgsom ter grootte van 3 maanden huurbetalingsverplichting vermeerderd met omzetbelasting

Huurovereenkomst conform ROZ model

BIJZONDERHEDEN:
– systeemplafond met verlichting en airco
– buitenterrein afsluitbaar middels elektrisch hekwerk
– glasvezel internetverbinding via glasnet Tiel
– energielabel A+

Kenmerken

  • Type object: Bedrijfsruimte
  • Perceeloppervlakte: 72m2
  • Vloeroppervlakte: 136m2
Meer lezen

Niet gevonden wat u zoekt?

Laat uw gegevens achter, zodat u op de hoogte wordt gebracht van ons nieuwe aanbod of plaats een professionele zoekopdracht

Heeft u vragen of wilt u een afspraak maken? Neem gerust contact met ons op!

"*" geeft vereiste velden aan

Dit veld is bedoeld voor validatiedoeleinden en moet niet worden gewijzigd.
Door het formulier te gebruiken, gaat u akkoord met de verwerking van uw persoonsgegevens volgens onze privacyverklaring