img description

Tiel Morsestraat 38 - 39

€ 995 p.m.

Omschrijving

Gelegen op een prachtige zichtlocatie kunnen wij deze midden unit op het schitterende nieuwbouwproject “de Uitvinder” in Tiel aanbieden.

Morsestraat 38-39 is gelegen aan de buitenzijde van het eerste gebouw en casco afgewerkt. Mocht deze unit net te klein zijn voor uw onderneming, de eigenaar bezit ook naastgelegen unit 38-40 welke u tegen een meerprijs erbij kunt huren. Deze unit is alleen qua trap gespiegeld maar verder even groot.

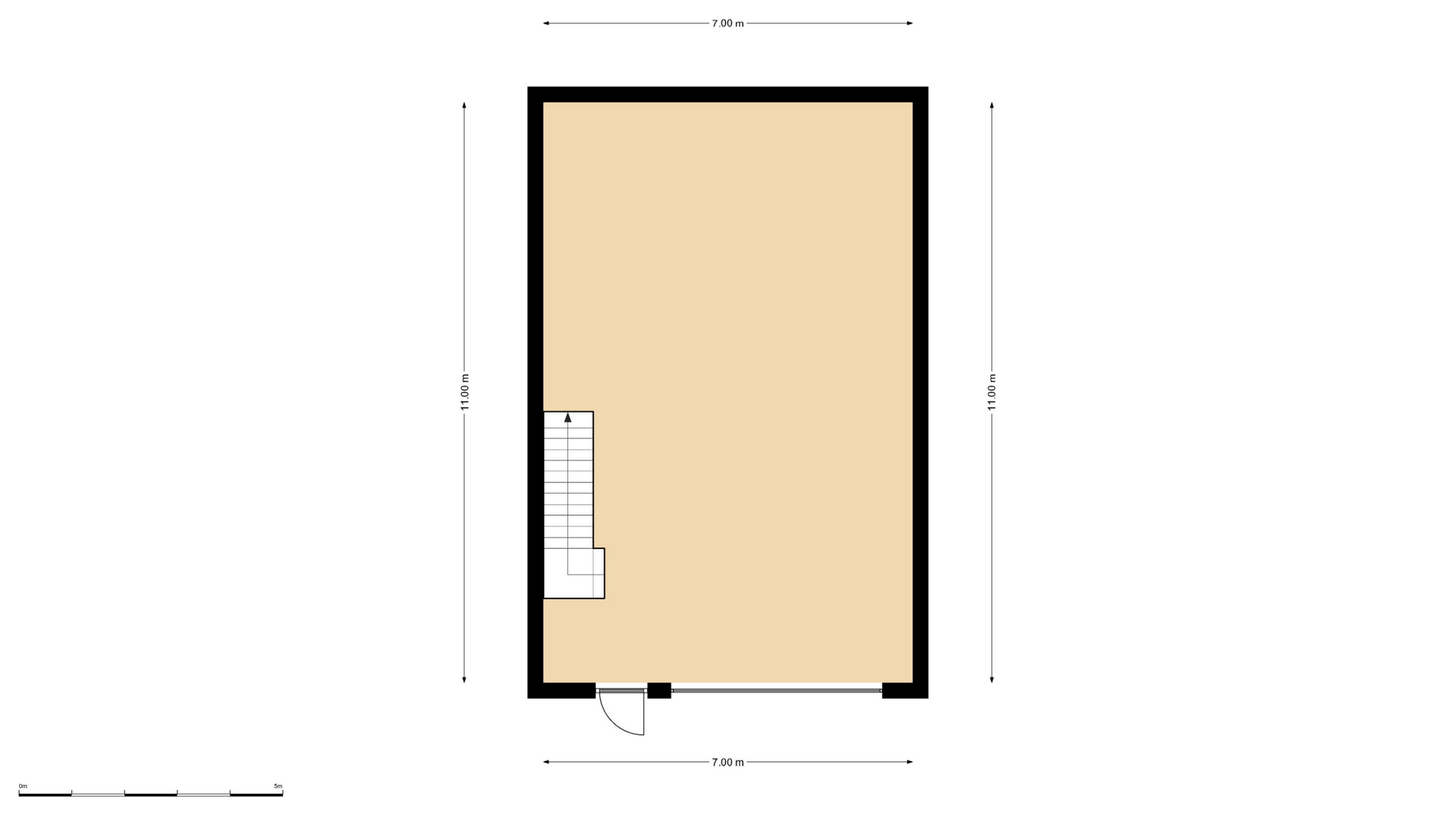
INDELING:
Begane grond: entree, bedrijfsruimte, trap naar verdieping
1e verdieping: kantoor/opslag ruimte

ALGEMENE INFORMATIE:
– bouwjaar: 2024
– begane grond 78 m²
– verdieping 78 m²
– vrije hoogte 3.65 m
– vloerbelasting begane grond 1.500 kg/m²
– de elektrische installatie is uitgevoerd op basis van 220 volt, 3×25 ampère (meter)
– iedere unit is voorzien van een eigen glasvezelaansluiting
– iedere unit is voorzien van elektra kabel voor een laadpaal vanuit de meterkast naar de dichtbij zijnde bijbehorende parkeerplaats

BESTEMMING:
– bestemmingsplan Kanaalzone met als functieaanduiding bedrijf tot en met categorie 5.1
Twijfelt u of de bestemming voldoet bij uw ondernemingsplannen? Neemt u dan contact op met het omgevingsloket van de gemeente Tiel.

PARKEREN:
Er zijn 2 parkeerplaatsen aanwezig per bedrijfsruimte en openbaar parkeren langs de doorgaande weg is ook toegestaan.

BEREIKBAARHEID:
Gelegen op bedrijventerrein “Kellen”.
De op- en afritten van de autosnelweg A15 (Rotterdam-Nijmegen) zijn bereikbaar binnen 10 autominuten, met snelle ontsluiting naar de A2 (Den Bosch-Utrecht).

HUURPRIJS & PERIODE:
– huurprijs € 995,- per maand excl BTW
– huurtermijn: 5 plus 5 jaar
– beschikbaar per direct
– opzegtermijn: 12 maanden
– servicekosten: € 25,- per maand excl BTW
– huurovereenkomst conform ROZ model
– waarborgsom ter grootte van 3 maanden huurbetalingsverplichting vermeerderd met omzetbelasting.

BIJZONDERHEDEN:
– perfect bereikbaar
– gelegen op een prachtige zichtlocatie
– goede ontsluiting van het gebouw
– goede isolatiewaarden
– glasvezelaansluiting

Kenmerken

  • Type object: Bedrijfsruimte
  • Vloeroppervlakte: 156m2
Meer lezen

Niet gevonden wat u zoekt?

Laat uw gegevens achter, zodat u op de hoogte wordt gebracht van ons nieuwe aanbod of plaats een professionele zoekopdracht

Heeft u vragen of wilt u een afspraak maken? Neem gerust contact met ons op!

"*" geeft vereiste velden aan

Dit veld is bedoeld voor validatiedoeleinden en moet niet worden gewijzigd.
Door het formulier te gebruiken, gaat u akkoord met de verwerking van uw persoonsgegevens volgens onze privacyverklaring