img description

Tiel Kersenboogerd 5

€ 1.475.000 k.k.

Omschrijving

TE KOOP: MODERNE KANTOORRUIMTE ALS BELEGGING OP KANTORENPARK WESTROIJEN TE TIEL!

Bent u op zoek naar een interessante en courante vastgoedbelegging op een uitstekende locatie? Aan de Kersenboogerd 3-5 in Tiel bieden wij een moderne kantoorruimte aan, gelegen op het representatieve Kantorenpark Westroijen, hét zakelijke knooppunt van de regio.

Deze kantoorruimte vormt een aantrekkelijke belegging dankzij de instapklare staat, de moderne afwerking en de goede verhuurbaarheid. De combinatie van representativiteit, gedeelde faciliteiten en een professionele uitstraling maakt dit object uitermate geschikt voor een brede doelgroep aan huurders, van startende ondernemers tot gevestigde bedrijven.

Dankzij de aanwezige gemeenschappelijke voorzieningen en de efficiënte indeling is het object flexibel in gebruik en goed te verhuren, wat het tot een solide en toekomstbestendige belegging maakt.

INDELING:
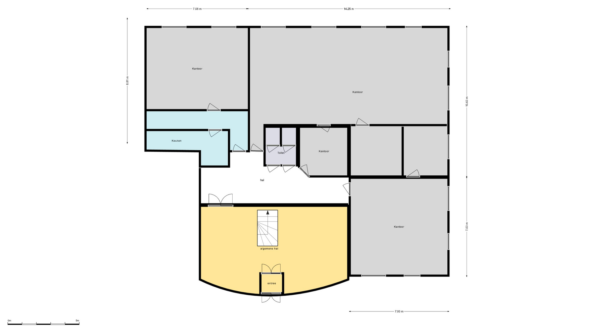
Begane grond: algemene entree met tochtportaal, gemeenschappelijke vergadertafel, trapopgang naar de eerste verdieping. Verder zijn er 2 ruime kantoorruimte aanwezig. De begane grond is geheel verhuurd.
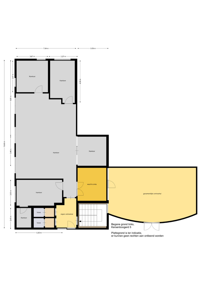
Eerste verdieping: centrale hal met toegang naar de 8 kantoorkamers , twee keukens met lunchplekken, toiletten en een gemeenschappelijke vergaderruimte. Op de verdieping zijn nog een aantal kamers te huur.

ALGEMENE INFORMATIE :
– totale oppervlakte: 991m²
– verhuurde oppervlakte: 704m²
– leegstaande oppervlakte: 287m²
– bruto huuropbrengst is: € 82.913,-
– leegstandswaarde is: € 31.570,-
– theoretische bruto huurwaarde: € 114.483,-

De kantoren zijn voorzien van een systeemplafond met LED verlichting met airco en een intercomsysteem om de voordeur te openen. Zowel op de begane grond als op de verdieping zijn vergaderruimtes/tafels waar gemeenschappelijk gebruik van gemaakt kan worden.

De ruimten op de begane grond hebben een langlopende contract van 5 plus 5 jaar, eerste termijn loopt tot eind 2030.
De kamers op de verdieping hebben een contract van 12 maanden welke met steeds een jaar verlengd worden.

BESTEMMINGSPLAN:
Voor deze kantoorruimte geldt een bestemming ‘Kantoor’. Deze bestemming is bestemd voor:
– kantoren
Twijfelt u of de bestemming voldoet bij uw ondernemingsplannen? Neemt u dan contact op met het omgevingsloket van de gemeente Tiel.

PARKEREN:
Er zijn in totaal 10 eigen parkeerplaatsen beschikbaar, welke allemaal mee verhuurd zijn aan de zittende huurders.
Er zijn 3 extra parkeerplaatsen bij gehuurd aan de Laan van Westroijen in Tiel ten behoeve van huurder WS Dienstverlening

BEREIKBAARHEID:
De ligging is strategisch en uitstekend bereikbaar, direct nabij de op- en afritten van de A15. Hierdoor zijn steden als Arnhem, Nijmegen, Utrecht en Rotterdam snel te bereiken. Daarnaast is de locatie goed ontsloten met het openbaar vervoer. In de directe omgeving bevinden zich diverse gerenommeerde bedrijven, wat bijdraagt aan een stabiele en gewilde kantooromgeving.

KOOPPRIJS:
– € 1.475.000,- kosten koper
– overdracht in overleg
– koopovereenkomst conform NVM model

BIJZONDERHEDEN:
– gelegen op een veel bezocht kantorenpark
– representatieve, algemene entree / ontvangstruimte

Bent u geïnteresseerd in deze belegging? Neem dan contact met ons op voor aanvullende informatie, waaronder huurgegevens. Deze ontvangt u na het ondertekenen van een geheimhoudingsverklaring.

Kenmerken

  • Type object: Bedrijfsruimte
  • Perceeloppervlakte: 1.100m2
  • Vloeroppervlakte: 991m2
  • Bouwjaar: 1980
Meer lezen

Niet gevonden wat u zoekt?

Laat uw gegevens achter, zodat u op de hoogte wordt gebracht van ons nieuwe aanbod of plaats een professionele zoekopdracht

Heeft u vragen of wilt u een afspraak maken? Neem gerust contact met ons op!

"*" geeft vereiste velden aan

Dit veld is bedoeld voor validatiedoeleinden en moet niet worden gewijzigd.
Door het formulier te gebruiken, gaat u akkoord met de verwerking van uw persoonsgegevens volgens onze privacyverklaring