img description

Lienden de Hofstede 30

€ 450 p.m.

Omschrijving

REPRESENTATIEVE KANTOORKAMERS OP ZICHTLOCATIE

Deze heerlijk lichte kantoorruimte dankzij het glas rondom, maakt deel uit van een bedrijfsverzamelgebouw en is gelegen op het bedrijventerrein “De Hofstede” in Lienden. De algemene ruimten bestaan uit een vergaderruimte, een opslagruimte, de entree, trap en toiletten.

De ruimten zijn voorzien van systeemplafond, stroompunten, airco en zonwering.

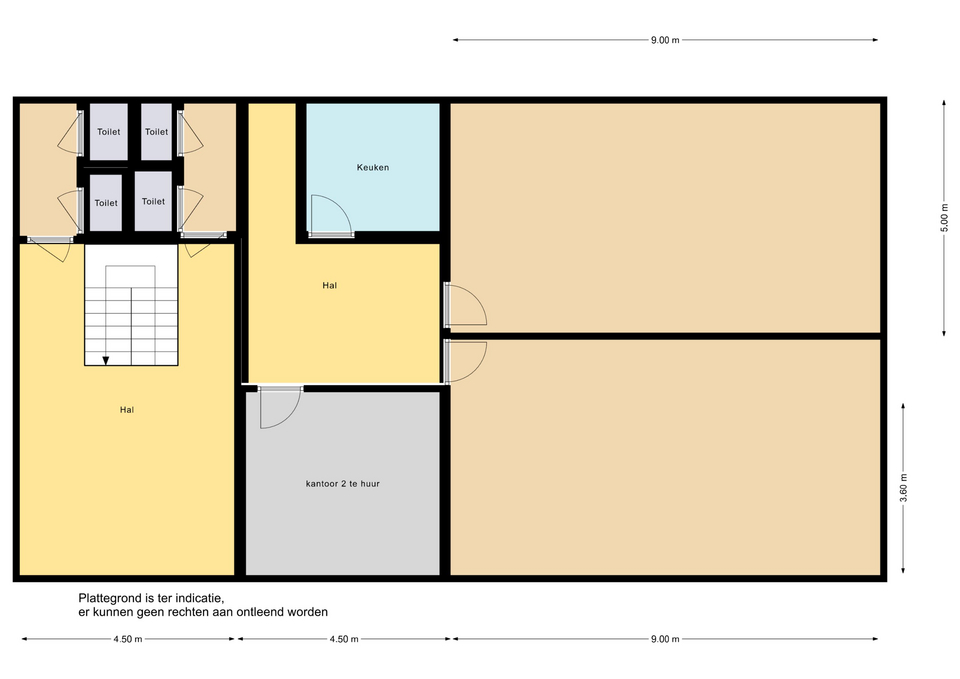
INDELING:
Begane grond: entreehal, gezamenlijke vergaderruimte, opslagruimte, trapopgang naar de etages.
1e verdieping: overloop/hal met toiletten, pantry en toegang tot kantoorruimte 1 en 2 (zie plattegrond)

LET OP: De foto’s en plattegronden zijn ter indicatie.

ALGEMEEN:
– afmeting kantoor 1 VERHUURD
– afmeting kantoor 2 25 m² incl. toedeling algemene ruimte
– vloerbelasting kantoorruimte circa 250 kg/ m²
– onder servicekosten vallen: gas, water, licht, schoonmaak algemene ruimten, tuinonderhoud, glasbewassing buiten en onderhoud installaties
– glasvezel beschikbaar

BESTEMMINGSPLAN:
Voor deze kantoorruimte geldt een bestemming ‘Bedrijf’.
Deze bestemming is bestemd voor:
– de bestaande doeleinden van handel en bedrijf
– doeleinden van handel en bedrijf t/m categorie 3.2 van de Staat van bedrijfsactiviteiten. Deze staat is op te vragen via de gemeente Buren of via ruimtelijkeplannen.nl

Twijfelt u of de bestemming voldoet bij uw ondernemingsplannen? Neemt u dan contact op met het omgevingsloket van de gemeente Buren.

PARKEREN:
Er is voldoende openbare parkeergelegenheid aanwezig.

BEREIKBAARHEID:
Bedrijventerrein De Hofstede ligt op zichtlocatie aan de Provinciale weg N320 en op steenworp afstand van de autosnelweg A15 (Keulen – Rotterdam). Tevens is de autosnelweg A2 (‘s-Hertogenbosch – Utrecht) binnen 20 autominuten bereikbaar. De ruimte kent derhalve een prima bereikbaarheid.

HUURPRIJS:
– huurprijs kamer 1 VERHUURD
– huurprijs kamer 2 € 450,- inclusief servicekosten exclusief BTW per maand
– huurperiode één jaar met mogelijkheid voor verlenging telkens met één jaar
– opzegtermijn à 3 maanden
– waarborgsom of bankgarantie ter grootte van drie maanden huur te verhogen met omzetbelasting en servicekosten.

BIJZONDERHEDEN:
– kantoorruimte v.v. airco en zonwering
– aanvaarding in overleg
– foto’s en plattegrond zijn ter indicatie, er kunnen geen rechten aan ontleend worden

Kenmerken

  • Type object: Bedrijfsruimte
  • Vloeroppervlakte: 25m2
  • Bouwjaar: 2001
  • Verdiepingen: 1
Meer lezen

Niet gevonden wat u zoekt?

Laat uw gegevens achter, zodat u op de hoogte wordt gebracht van ons nieuwe aanbod of plaats een professionele zoekopdracht

Heeft u vragen of wilt u een afspraak maken? Neem gerust contact met ons op!

"*" geeft vereiste velden aan

Dit veld is bedoeld voor validatiedoeleinden en moet niet worden gewijzigd.
Door het formulier te gebruiken, gaat u akkoord met de verwerking van uw persoonsgegevens volgens onze privacyverklaring